
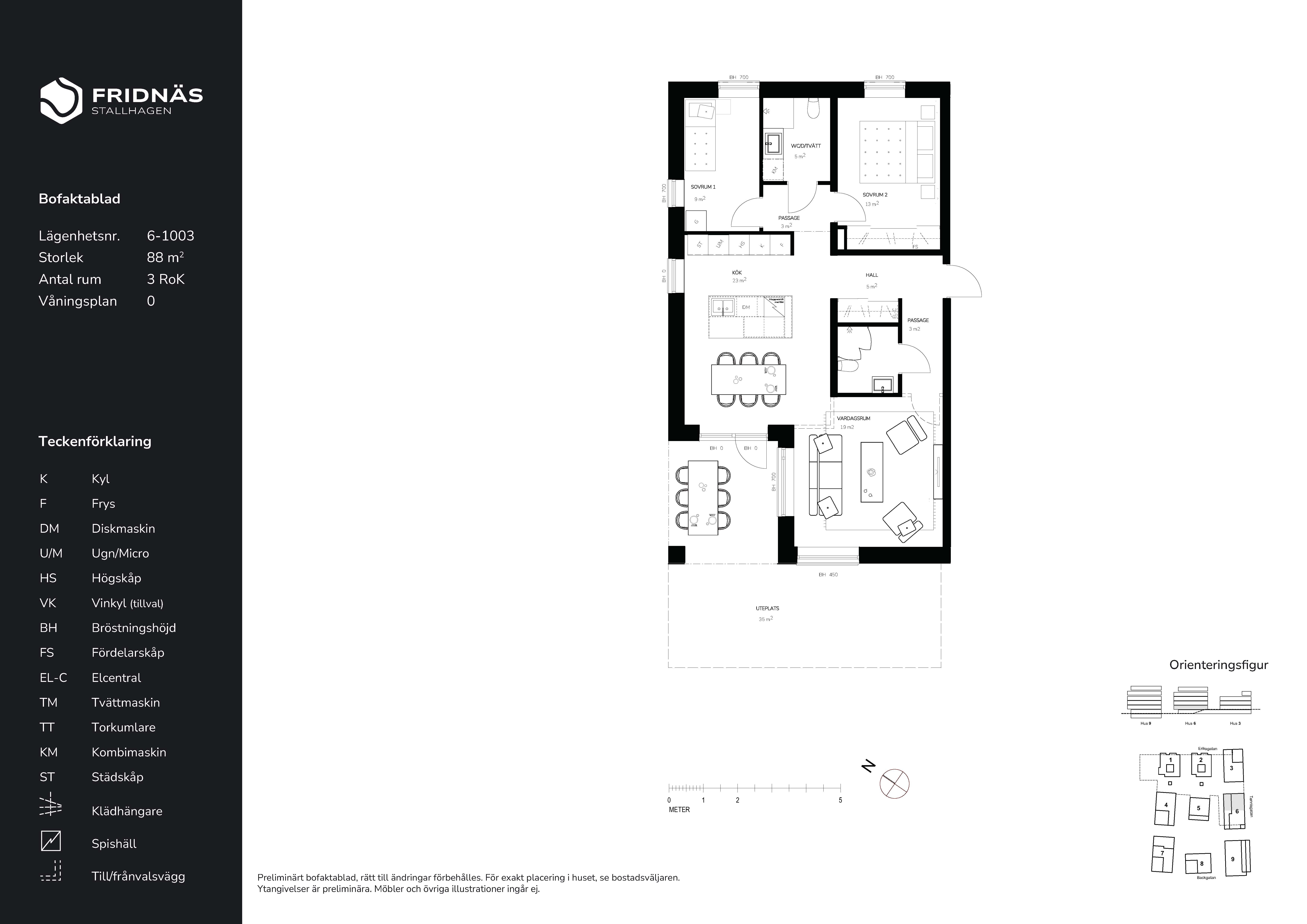
En välplanerad bostad där varje kvadratmeter har sin funktion och en tydlig uppdelning mellan sociala och privata ytor. Kök och vardagsrum ligger i en öppen disposition med naturligt flöde. Det generösa köket rymmer både matplats för större sällskap och köksö, med gott om arbetsyta och förvaring. Vardagsrummet är lättmöblerat och leder ut till den stora uteplatsen som förlänger sällskapsytorna. Den privata delen är avskild med två sovrum och ett rymligt badrum. Ett hem som passar både familjen och paret som vill ha extra rum för arbete eller gäster.
Anmäl ditt intresse så kontaktar vi dig inom kort samt håller dig informerad via regelbundna nyhetsbrev.
Alla lägenheter har genomgående hög standard där varje val, från golv till beslag, bär på en tanke om hållbar estetik och funktion. Här har vi valt ut några av treorna i Brf Fridnäs som du kan utforska närmare.

